Minimalistisches Ferienhaus am Darss mit großzügiger Glasfassade und vorvergrauter Holzfassade aus Lärche von Bonauer Bölling Architekten, Berlin.
Minimalistisches Ferienhaus am Darss mit großzügigem Wohnbereich, Kamin und Kücheninsel von Bonauer Bölling Architekten, Berlin.
Minimalistisches Ferienhaus am Dass mit vorvergrauter Holzfassade aus Lärche und schwarzen Metallelementen von Bonauer Bölling Architekten, Berlin
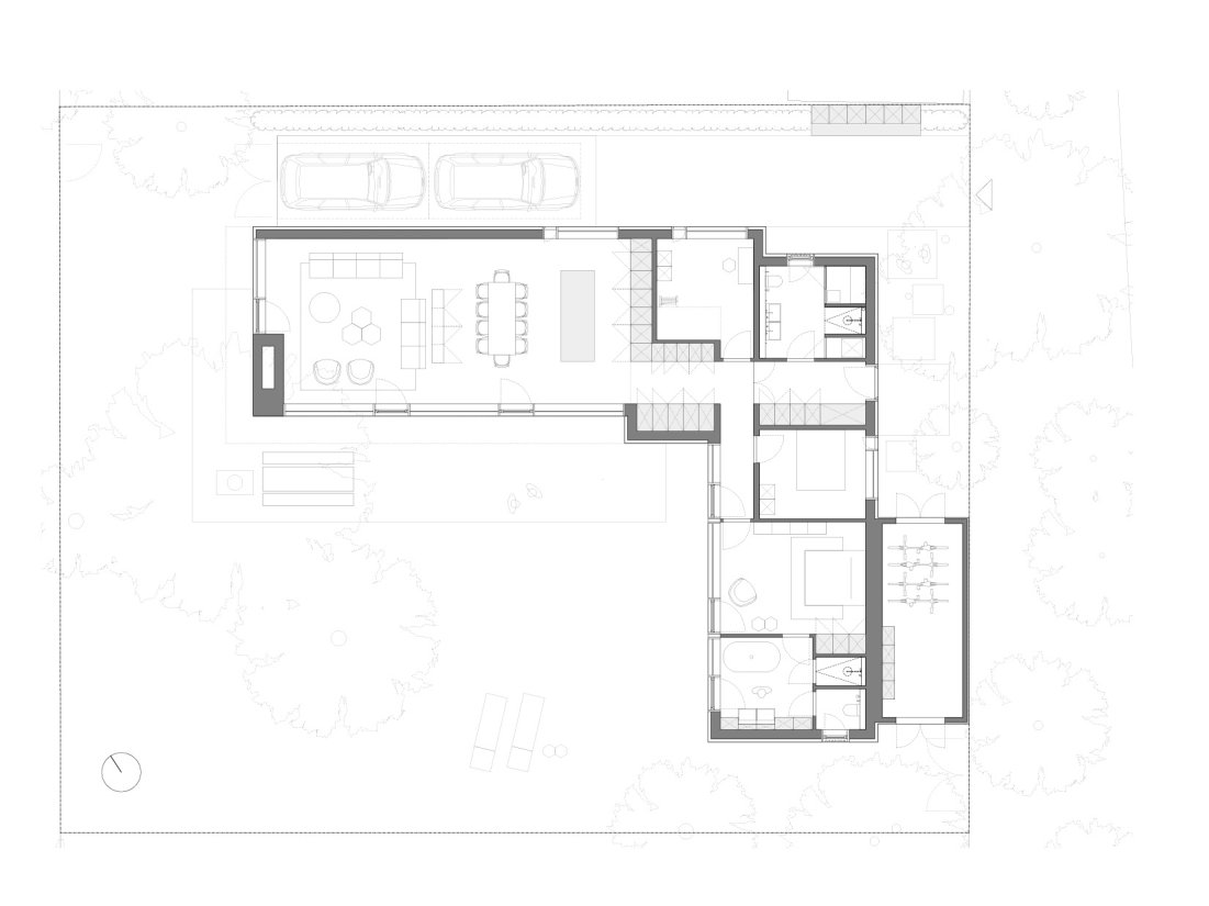
Grundriss eines minimalistischen Ferienhaus am Darss mit großzügiger Glasfassade und vorvergrauter Holzfassade aus Lärche von Bonauer Bölling Architekten, Berlin.
Ansichten eines minimalistischen Ferienhaus am Darss mit großzügiger Glasfassade und vorvergrauter Holzfassade aus Lärche von Bonauer Bölling Architekten, Berlin.
Ansichten eines minimalistischen Ferienhaus am Darss mit großzügiger Glasfassade und vorvergrauter Holzfassade aus Lärche von Bonauer Bölling Architekten, Berlin.

Haus auf dem Darß

Neubau eines Ferienhauses an der Ostsee

Das neu geplante Ferienhaus befindet sich in einer kleinen Siedlung in unmittelbarer Nähe zum Meer. Der L-förmige Bungalow aus verschieden hohen Kuben greift die Kleinteiligkeit der umgebenen Bebauung auf und übersetzt sie in eine zeitgenössische, moderne Architektursprache.

Die großflächig verglasten Wohn- und Schlafbereiche orientieren sich zum Garten und einem kleinen, märchenhaften Waldstück, durch den ein verschlungener Pfad direkt zum weitläufigen Strand führt. Die Materialität der Aussenhülle und Innenräume ist geprägt durch eine sorgfältig ausgewählte Palette natürlicher, langlebiger und nahbarer Materialien die dem Gebäude eine wohnliche und wertige Atmosphäre verleihen.

StandortDarß an der Ostsee
Bauherrprivat
Zeitraum2020
Leistungsphasen1-4
BauvolumenBGF 180m2
VerfahrenDirektauftrag
TragwerkHHT Ingenieure
ArchitekturBonauer Bölling, Berlin
Markus Bonauer, Michael Bölling
TeamLukas de Pellegrin