Modulhaus

Konzept für modulares Wohnen im urbanen Kontext

Das Modulhaus ist als durchlässiger Baustein entworfen und eröffnet seinen Bewohnern zukünftige Möglichkeitsräume. Es soll Ihnen die Freiheit bieten, Ihren Lebensraum den eigenen Bedürfnissen anzupassen und im Laufe der Zeit immer wieder zu verändern. Ein Gebäude, das Experimente zulässt und über eine wertige, langlebige Materialität, eine zeitlos moderne Erscheinung und einen nahbaren Charakter verfügt.

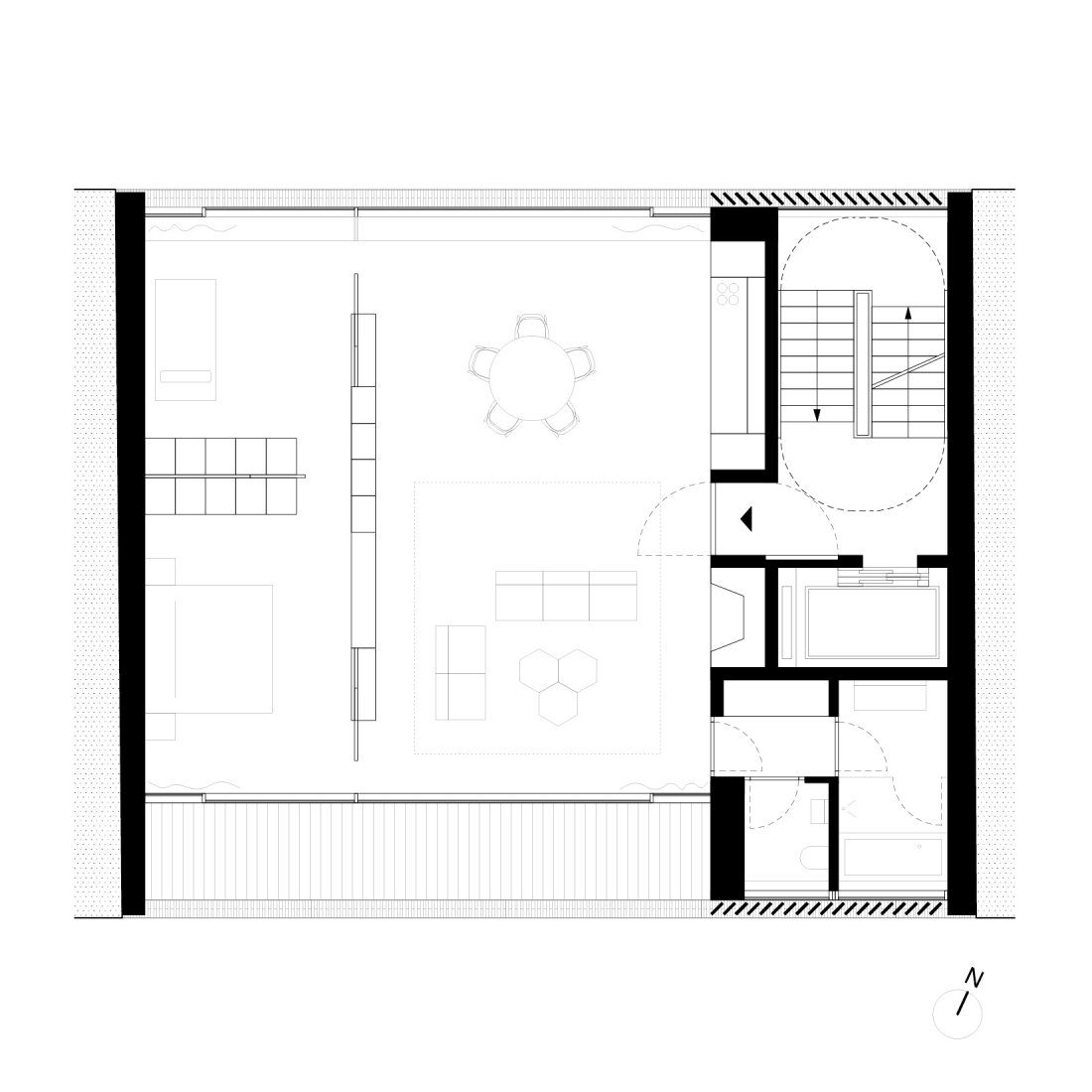
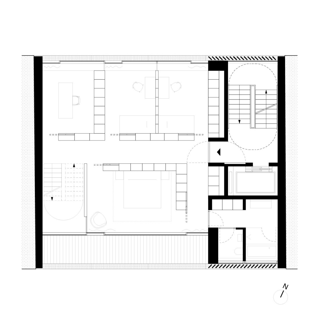
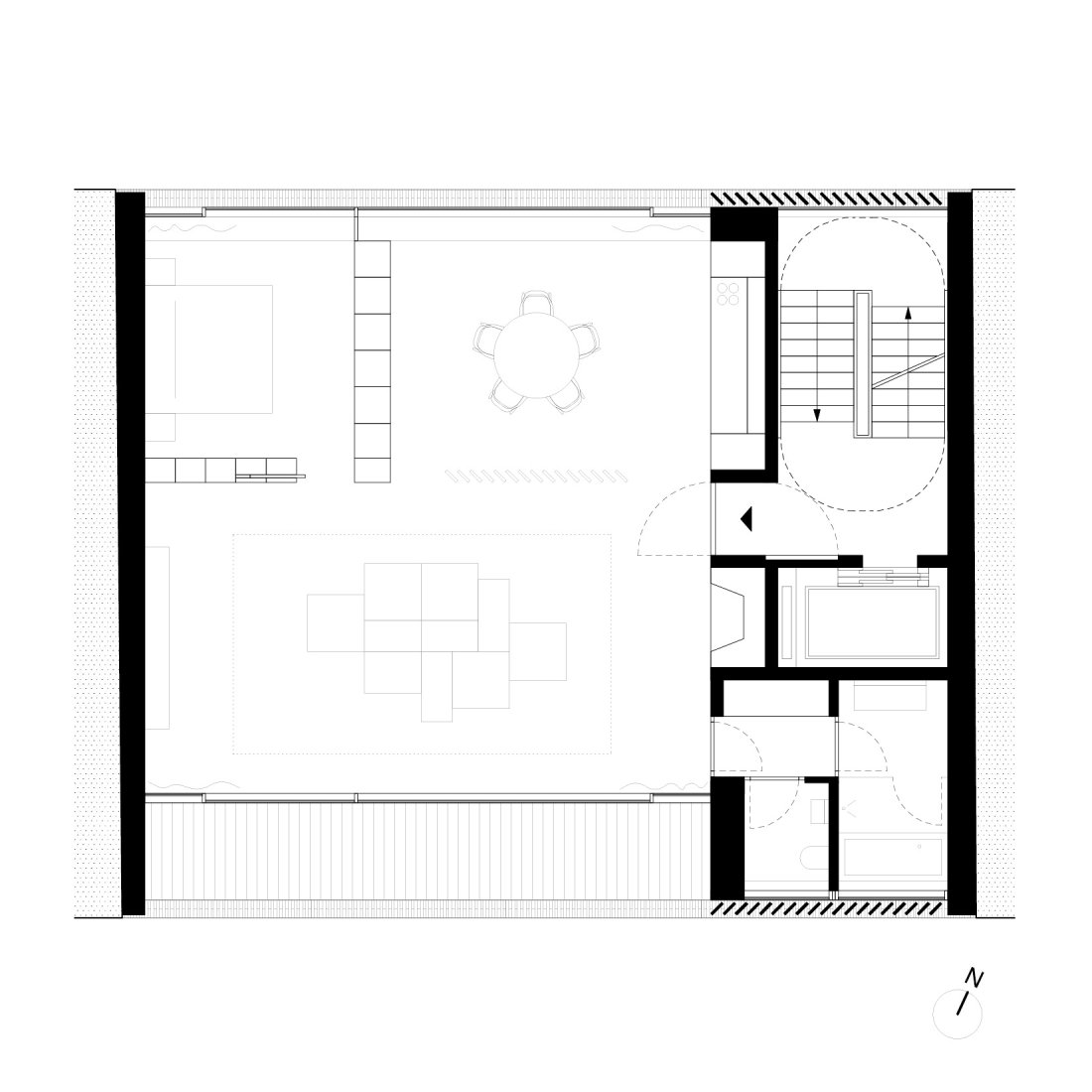
Das Gebäude bietet auf 6 Geschossen Platz für 5-6 Wohneinheiten. Die Wohneinheiten sind als offene, großzügige Loftwohnungen konzipiert, die sich über die gesamte Gebäudetiefe erstrecken. In einer kompakten Kernzone entlang der östlichen Grundstücksgrenze sind neben der vertikale Erschließung, sämtliche dienenden Räume, die Bäder, Stauräume und raumhohen Einbauküchen organisiert. So entsteht für die Wohnbereiche über die gesamte Gebäudetiefe ein stützenfreier, frei bespielbarer Möglichkeitsraum, der von seinen Bewohnern je nach Belieben mit Einbaumöbeln unterteilt und zoniert werden kann.

Die offene Grundstruktur des Gebäudes setzt sich in der variablen Gestaltung der Fassaden fort. Die Wohnbereiche zeichnen sich als offene, durchlässige Fassadenbereiche mit minimierten Profilansichten ab. Niedrige Brüstungen zur Straße und den Loggien zum Garten fassen die Räume in Ihrer Proportion und gewähren beidseitigen Sichtschutz.

StandortBerlin
BauherrTBD
Zeitraum2019
BauvolumenBGF 1.500m2
VerfahrenWettbewerb
ArchitekturBonauer Bölling, Berlin
Markus Bonauer, Michael Bölling
TeamLukas de Pellegrin