Penthouse Berlin Prenzlauer Berg

Raumbildender Ausbau eines Penthouse Lofts in Berlin Prenzlauer Berg

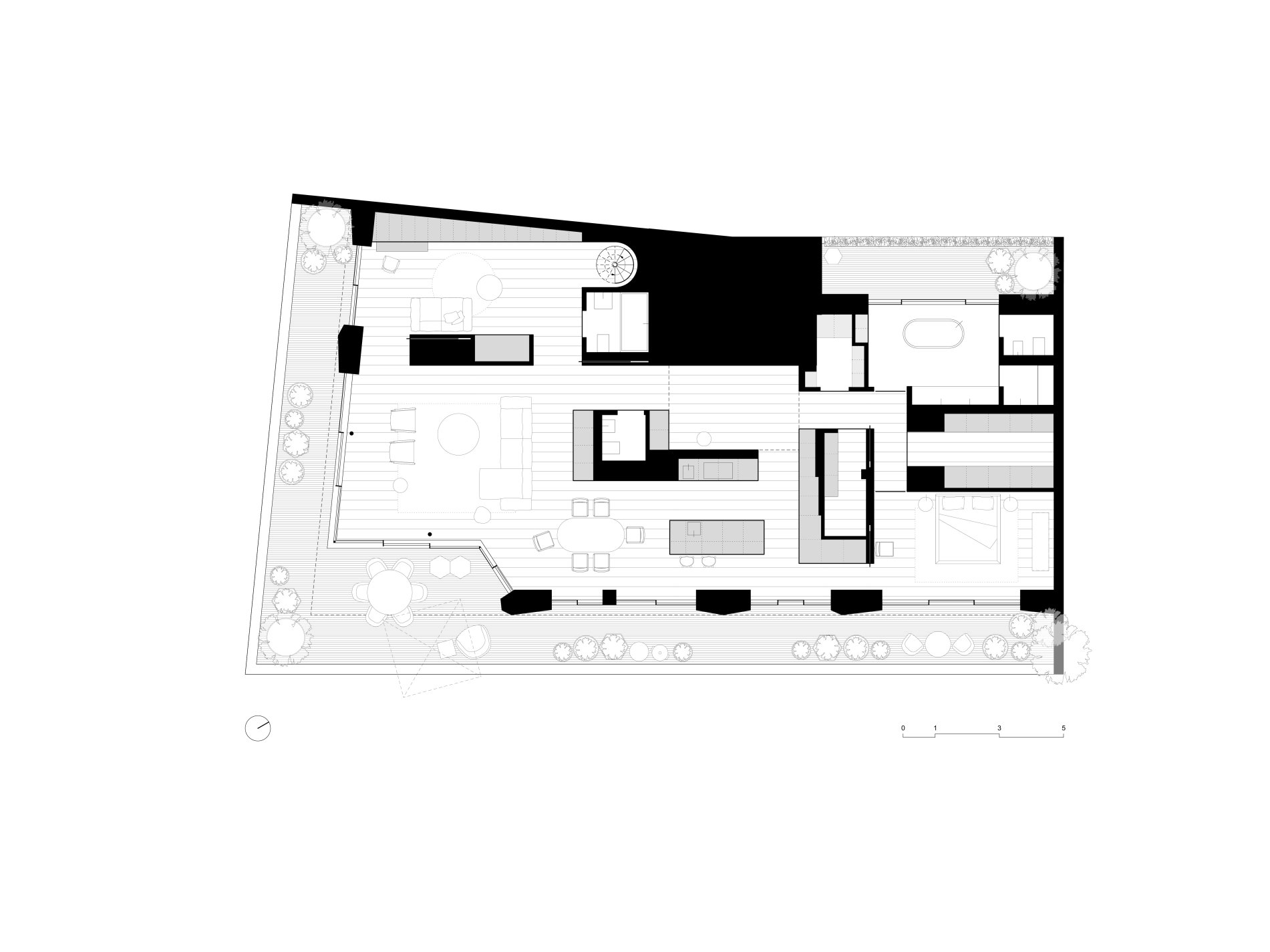
Der Entwurf gliedert den offenen Grundriss des Apartments in verschiedene Raumbereiche mit fließenden Übergängen. Kubenförmige Einbauten begrenzen die einzelnen Bereiche und schaffen Räume mit unterschiedlichen Atmosphären und Privatheit. In ihrem Innern bieten die Kuben Raum für dienende Räume wie Gäste-WC, Bad und Einbauschränke.

Ein durchgängiger Holzboden aus großformatigen, weiß geölten Eichendielen unterstützt den fließenden Raumeindruck und gibt den Räumen einen wohnlichen und großzügigen Charakter. Ergänzt wird die Materialpalette durch helles Eichenholzfurnier und Marmoroberflächen in unterschiedlichen hellen Farbtönen.

StandortBerlin
BauherrPrivat
Zeitraum2018-2022
Leistungsphasen1-8
BauvolumenBGF 260m2
VerfahrenDirektauftrag
ArchitekturBonauer Bölling, Berlin
Markus Bonauer, Michael Bölling
TeamLukas de Pellegrin, Philipp Heidemann
Auszeichnungen2024 Deutscher Natursteinpreis
2023 da! Architektur in und aus Berlin