Remise Berlin Mitte

Worklofts im Hinterhof - Nachverdichtung eines Gründerzeitblocks mit einem Remisengebäude in Berlin Mitte

Vor dem Hintergrund einer zunehmender Flächenknappheit und steigenden Nachfrage, gewinnt das Thema Nachverdichtung im urbanen Raum insbesondere in Berlin immer mehr an Bedeutung. Das Ausloten von Potentialen im bestehenden Bebauungskontext und das behutsame Reaktivieren der Verflechtung von Wohnen und Arbeiten in den Berliner Hinterhöfen schafft eine zukunftsfähige Grundlage für eine lebenswerte und belebte Stadt.

Als Ergänzung des bestehenden Wohngebäudes aus der Gründerzeit in Berlin Mitte entsteht im Hinterhof ein 6-geschossiges Remisengebäude mit großzügigen Worklofts. Bis Mitte des letzten Jahrhunderts war der jetzige Standort der Remise mit einem historischen Quergebäude bebaut, das in den 60er Jahren abgerissen und nicht wieder aufgebaut wurde.

Der Neubau der Remise orientiert sich an den Abmessungen des historischen Grundrisses, besetzt jedoch die rückseitige Grundstücksfläche nicht komplett, sondern hält bewusst Abstand zur angrenzenden Brandwand, um eine optimierte Belichtung und Belüftung des Bestands und Neubaus zu gewährleisten. Hierdurch können die offenen Worklofts zweiseitig mit großzügigen Fensterflächen geöffnet werden und mit Balkonen in den Außenraum erweitert werden. Ebenfalls ergab sich hierdurch die Chance die haushohe Brandwand großflächig zu begrünen und den ehemals tristen Hinterhof in eine grüne Oase zu verwandeln. In diesem Zuge wurde der Hofbereich zu den historischen Bestandsgebäuden und Nachbarn ebenfalls noch um einen Kinderspielplatz, Hofbrunnen und Sitzmöglichkeiten im Grünen ergänzt.

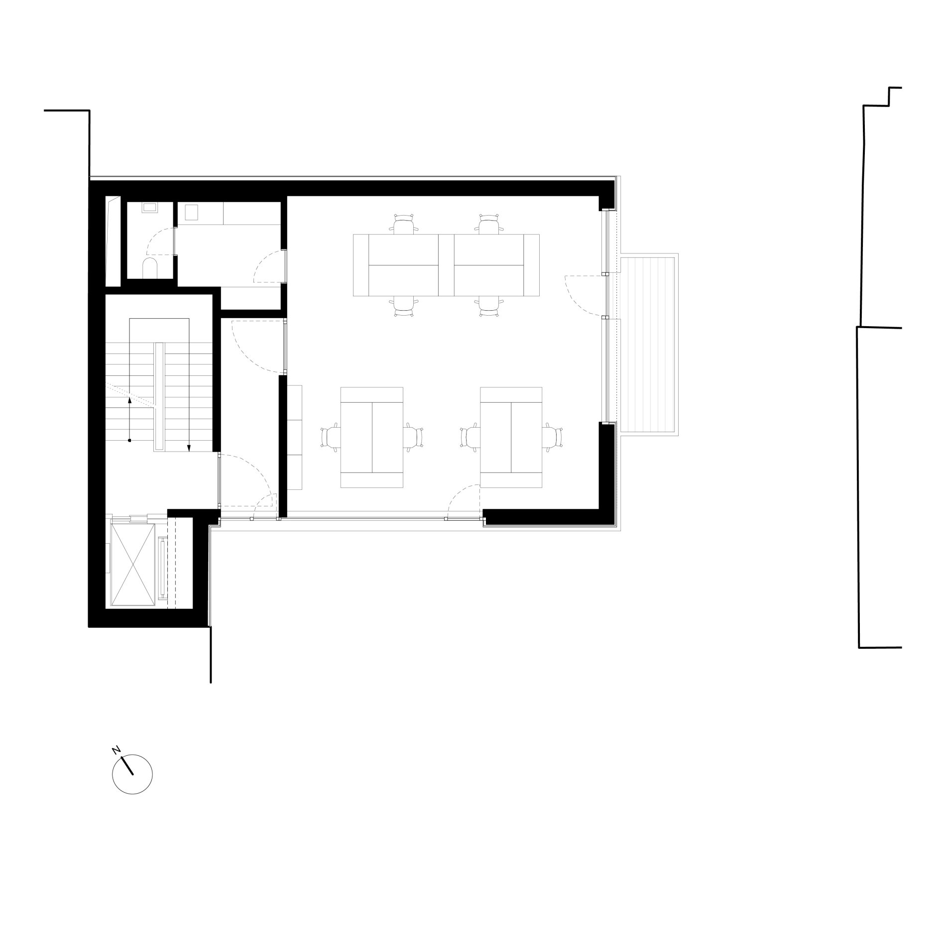
Durch die Verwendung eines kompakten Sicherheitstreppenraums war es möglich die notwendigen Verkehrsflächen auf ein Minimum zu reduzieren und das Gebäude mit nur einem Treppenkern zu erschliessen. Die Worklofts sind stützenfrei konzipiert und flexibel nutzbar. Auf 6 Geschossen bieten sie Raum für kreatives und fokussiertes Arbeiten mit Blick ins Grüne mitten im Zentrum Berlins.

StandortBerlin Mitte
BauherrPrivat
Zeitraum2019-2022
Leistungsphasen1-4
BauvolumenBGF 900m2
VerfahrenDirektauftrag
TragwerkKnippers Helbig
BauphysikCSD Ingenieure
TGAIDD Ingenieure
BrandschutzBüro Stanek
ArchitekturBonauer Bölling, Berlin
Markus Bonauer, Michael Bölling
TeamLukas de Pellegrin, Philipp Heidemann