Detail der Holz-Aluminum-Fenster und der davor verlaufenden Schiebeläden aus vergrautem Lärchenholz
Weitläufige Fensterfronten führen im Haupthaus auf die beiden Terrassen im Erd- und Obergeschoss
Die Villa am Wandlitzsee besteht aus einem Ensemble von vier Gebäuden und bildet in seiner Anordnung offene Höfe, aber auch private Außenräume
Detail der Schiebeläden aus vergrautem Lärchenholz an den Terrassen
Detail der Holz-Aluminum-Fenster und der davor verlaufenden Schiebeläden aus vergrautem Lärchenholz
Detail der Holz-Aluminum-Fenster und der davor verlaufenden Schiebeläden aus vergrautem Lärchenholz
Rhythmisierte Holzfassaden und Schiebeläden der Villa aus vier Gebäuden am Wandlitzsee von Bonauer Bölling Architekten
Detail der Holz-Aluminum-Fenster und der davor verlaufenden Schiebeläden aus vergrautem Lärchenholz
Die Villa am Wandlitzsee besteht aus einem Ensemble von vier Gebäuden und bildet in seiner Anordnung offene Höfe, aber auch private Außenräume
Rhythmisierte Holzfassaden und Schiebeläden der Villa aus vier Gebäuden am Wandlitzsee von Bonauer Bölling Architekten
Detail der Holz-Aluminum-Türen an der rhythmisierten Fassade aus vergrautem Lärchenholz
Blick vom Wandlitzsee auf die Villa zwischen den Bäumen
Lageplan Villa aus vier Gebäuden in Holzbauweise am Wandlitzsee von Bonauer Bölling Architekten
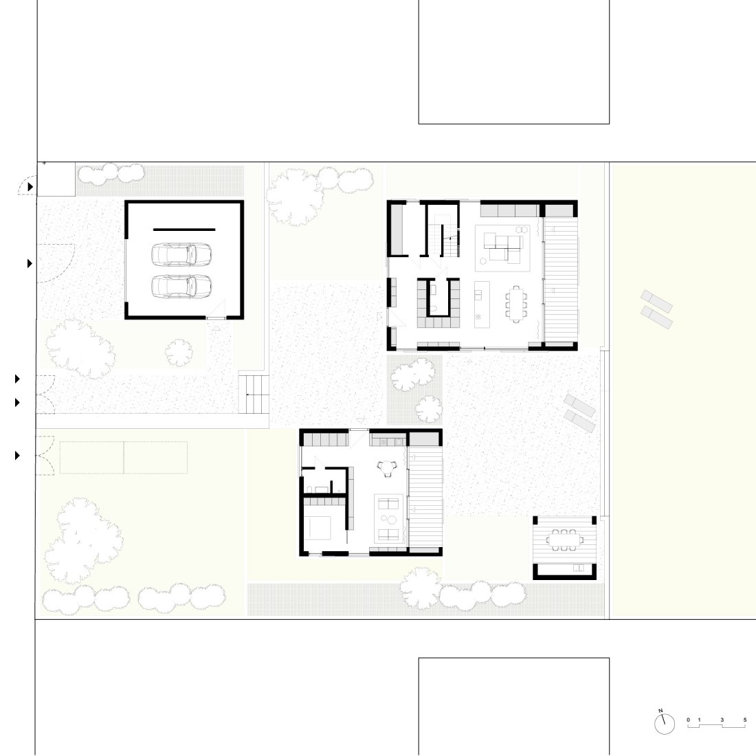
Grundriss Erdgeschoss Villa aus vier Gebäuden in Holzbauweise am Wandlitzsee von Bonauer Bölling Architekten
Grundriss Obergeschoss Villa aus vier Gebäuden in Holzbauweise am Wandlitzsee von Bonauer Bölling Architekten

Seehäuser am Wandlitzsee

Neubau Wohnhäuser in Holzbauweise am Wandlitzsee

Das aus vier Baukörpern bestehende Ensemble am Wandlitz See bildet in seiner Anordnung offene Höfe, aber auch private Außenräume.
Die innere Organisation folgt dem raumbildenden Prinzip in Form von Möbelelementen, welche das Haus in spannende Raumfunktionen gliedert.

Dabei verändern Schiebeläden, die Raumwirkung und dessen äußere Erscheinung nutzungsabhängig. So können sich die Gebäude öffnen, aber auch schließen und verschiedene Atmosphären erzeugen.

StandortWandlitz
Bauherrprivat
Zeitraum2016-2019
Leistungsphasen1-8
BauvolumenBGF 497m2
VerfahrenDirektauftrag
TragwerkHHT Ingenieure Berlin
TGAClemens Beutler
BauphysikDr. Zauft
ArchitekturBonauer Bölling, Berlin
Markus Bonauer, Michael Bölling
TeamLPH1-5: Lukas de Pellegrin, Fred Küsters, Esteban-Michel Jesus Toussaint
LPH6-8: Böhm Ruic Architekten Berlin
Auszeichnung2021 da! Architektur in und aus Berlin